Exclusive Living in Medina
Visit Forest Meadow Villas
Floor Plans
View three styles of Villas to find your perfect way of exclusive living with freedom from the headaches and hassles that come with home ownership.
Hear From Residents
Wondering why our residents love to live at Forest Meadow Villas? Discover why our residents recommend us to all their family, friends and visitors!
Villa Voice Newsletter
A monthly newsletter that includes announcements, upcoming events, activities calendar and changes occuring within our community.
We are the Best Kept Secret in Medina!
Forest Meadow Villas is a different kind of rental community.
We’re designed for people who appreciate living in a neighborhood catering exclusively to people in their own age group.
A community of people who share the advantages of exclusive living and enjoy the freedom from the headaches and hassles that come with homeownership.
We would like to give you a personal invitation to visit our exclusive living community for 55 & better. We have gone green with solar energy! There is great costs savings with utilities and all-inclusive rent on select units!Â
Our staff, residents, newly renovated property, and beautiful grounds give us the edge.
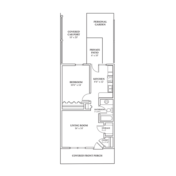
Villa Floor Plans

Villa
This One Bedroom Villa features 640 sq. ft of living space including a large living room, multiple closets, a spacious kitchen, plenty of storage space, as well as your own patio with personal garden and private car port.

Midroom Villa
This Midroom Villa features 810 sq. ft of living space including a large living room, multiple closets, a spacious kitchen, plenty of storage space, as well as your own patio and private car port. This unique floorplan offers a midroom for office, dining or extra bedroom.

Townhome Villa
This Townhouse Villa features 1040 sq. ft of living space on two levels. It includes a large living room, two bedrooms, a spacious kitchen, plenty of storage space, as well as a patio and car port.
We can't wait to show you everything Forest Meadows Villas has to offer.
Find out what our residents already know and why Forest Meadow Villas is the "Best kept secret in Medina!"
