Townhome
2
Bedroom
2
Bath
1040
Square Feet
1635
Monthly Rent, Solar Power, Cable & Internet!
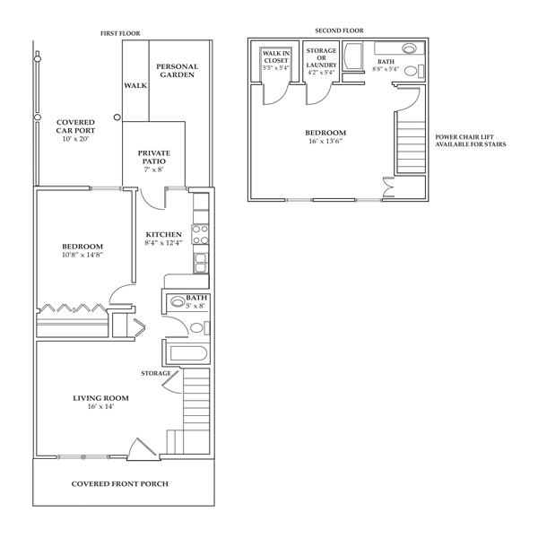
This 2 Bedroom Townhouse Villa features 1040 sq. ft of living space on two levels. It includes a large living room, two bedrooms, a spacious kitchen, plenty of storage space, as well as a front porch and back patio with parking at your back carport. All units include utilities, including electric, internet, cable and much more. UNITS ARE NOW ALL INCLUSIVE WITH UTILITIES! All Electric solar power! The first to go green in Multi-family living!
All-Inclusive Rent & Utilities including Solar power! Â $1635.00 – (limited lake views at additional costs)
Features Spacious Living Room
- NON SMOKING COMMUNITY
- Select units now include Electric Flat Rate!
- Spacious Living Room
- Fully-equipped kitchen
- First-floor bedroom with closet
- Large second-floor bedroom with walk-in closet
- Mini-blinds now included on select windows
- Two full baths with sit down vanity
- 5 closets and 1 walk-in laundry/storage room
- Personal washer/dryer hookups available ( Stackable 24″ Machine Only)
- Cable ready in all units – NO SATELLITE DISHES ALLOWED
- Covered front porch
- Private covered carport
- Private patio with personal garden
- Lake view(Additional Cost) or courtyard views are available
- On-site storage available
- Mailroom near Villas
- Community laundry near Villas
- NEW – All Rent transactions are done on line with our new software!
Villa Pricing
Rent Includes
- Sewer, Water & Trash
- We are GOING GREEN with Solar! Select units now include a Electric Flat Rate!
- NEW Basic HD Cable TVÂ & High speed wireless internet INCLUDED IN ALL PRICING
- Maintenance including, Interior, Exterior, Appliances supplied
- SMOKE FREE COMMUNITY
- Trash Pick Up
- Landscaping
- Snow Removal
- Wireless Personal Alert System (optional)
- Weekly Activities at the Club House
- Bus Service
Residents Pay For
- Electric(Powers Furnace/AC), No gas on property! ONLY ONE UTILITY BILL until unit is converted to solar power!Â
- Upgrades provided by Armstrong Cable Services, including landline phone – NO Satellite Dishes Allowed.
- Personal stackable 24″ Washer/Dryer
- Maintenance of Washer/Dryer
- Specialty Landscaping with in your patio of your unit!
- Pets-$350.00 Non-refundable fee. $35/mo, per pet up to 2 pets, 55 lb. maximum, non-aggressive breeds only. Please see pet policy for more information.
Lease Terms
- 1 year lease with auto renewal
- 60 day notice required, please inquire for further details
- Security deposit will be returned in 30 days after tenant has vacated and satisfactory inspection of apartment
We can't wait to show you everything Forest Meadows Villas has to offer.
Find out what our residents already know and why Forest Meadow Villas is the "Best kept secret in Medina!"

